Base rent $1,215 - $3,855
Beds Studio-2 Beds
Baths 1-2.5

Inspire

2837 Emerson Ave S, Minneapolis, MN

Schedule a tour

Select a date to start scheduling a tour.
Loading...

Floor plans

Updated today
This listing displays total monthly cost, which is the base rent including recurring monthly fees and costs as provided by the property. It does not include application fees, variable costs, and optional charges such as application fees, utility costs, pet charges, etc.
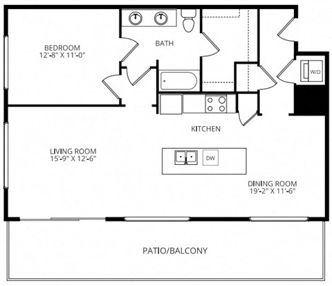
B16 1x1
B16 1x1
1 Bed / 1 Bath / 802 - 880 Sqft
$1,715 - $2,415
Unit Total monthly cost Availability
WAITB16 $1,609 Now
View
W408 $1,715 - $2,415 Now
View
a floor plan of a house with a bedroom and a living room
B18 1x1
1 Bed / 1 Bath / 853 Sqft
$1,850 - $2,600
Unit Total monthly cost Availability
WAITB18 $1,689 Now
View
E433 $1,850 - $2,600 Now
View
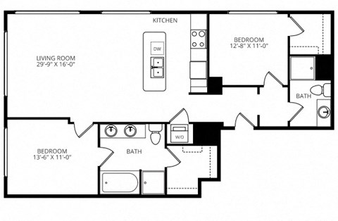
C18 2x2.5den
C18 2x2.5den
2 Beds / 2.5 Baths / 1,528 - 1,605 Sqft
$2,710 - $3,855
Unit Total monthly cost Availability
WAITC18 $3,091 Now
View
THC2822 $2,710 - $3,425 Now
View
a floor plan of a two story house with a garage and a staircase
C11 2x2
2 Beds / 2 Baths / 1,232 Sqft
$2,250 - $2,895
Unit Total monthly cost Availability
WAITC11 $2,100 Now
View
213 $2,250 - $2,845 Now
View
a floor plan of a house with a bedroom and a living room
A5 0x1
Studio / 1 Bath / 621 - 645 Sqft
$1,375 - $2,080
Unit Total monthly cost Availability
WAITA5 $1,350 Now
View
322 $1,375 - $2,005 Jun 13
View
a floor plan of a house with a bedroom and a living room
A7 0x1
Studio / 1 Bath / 636 Sqft
$1,410 - $2,005
Unit Total monthly cost Availability
WAITA7 $1,349 Now
View
E140 $1,410 - $2,005 Jul 21
View
a floor plan of a 1 bedroom floor plan with a bathroom and a living room
B05 1x1
1 Bed / 1 Bath / 691 Sqft
$1,655 - $2,110
Unit Total monthly cost Availability
WAITB5 $1,464 Now
View
CN431 $1,655 - $2,110 Jul 23
View
a floor plan of a house with a bedroom and a living room
B04 1x1
1 Bed / 1 Bath / 694 Sqft
$1,730 - $2,330
Unit Total monthly cost Availability
WAITB4 $1,432 Now
View
CW514 $1,730 - $2,330 Jun 27
View
an illustration of a floor plan of a house
B15 1x1
1 Bed / 1 Bath / 828 Sqft
$1,750 - $2,225
Unit Total monthly cost Availability
WAITB15 $1,577 Now
View
CN324 $1,750 - $2,225 Jul 10
View
a floor plan of a house with a bedroom and a living room
B20 1x1
1 Bed / 1 Bath / 858 Sqft
$1,830 - $2,335
Unit Total monthly cost Availability
WAITB20 $1,657 Now
View
CE246 $1,830 - $2,335 Jul 8
View
a floor plan of a house with an open floor plan
B25 1x1
1 Bed / 1 Bath / 924 Sqft
$1,865 - $2,370
Unit Total monthly cost Availability
WAITB25 $1,721 Now
View
CW503 $1,865 - $2,370 Sep 10
View
a floor plan of a house with an open floor plan
B23 1x1
1 Bed / 1 Bath / 882 Sqft
$1,860 - $2,370
Unit Total monthly cost Availability
WAITB23 $1,689 Now
View
412 $1,860 - $2,370 Jul 31
View
an illustration of a floor plan of a house
B29 1x1
1 Bed / 1 Bath / 942 - 989 Sqft
$2,045 - $2,750
Unit Total monthly cost Availability
WAITB29 $1,882 Now
View
218 $2,045 - $2,750 Jun 30
View
B12 1x1
B12 1x1
1 Bed / 1 Bath / 802 Sqft
$1,685 - $2,145
Unit Total monthly cost Availability
WAITB12 $1,577 Now
View
N113 $1,685 - $2,145 Jul 31
View
a floor plan of a house with a bedroom and a living room
B10 1x1
1 Bed / 1 Bath / 785 Sqft
$1,830 - $2,335
Unit Total monthly cost Availability
WAITB10 $1,657 Now
View
E340 $1,830 - $2,335 Jul 6
View
a floor plan of a house
B21 1x1
1 Bed / 1 Bath / 860 Sqft
$1,830 - $2,465
Unit Total monthly cost Availability
WAITB21 $1,657 Now
View
N322 $1,830 - $2,465 Jun 12
View
a floor plan of a house with a bedroom and a living room
C03 2x2
2 Beds / 2 Baths / 1,122 Sqft
$2,225 - $2,735
Unit Total monthly cost Availability
WAITC3 $2,050 Now
View
CE248 $2,225 - $2,725 Jul 10
View
a floor plan of a house with an open floor plan
C16 2x2
2 Beds / 2 Baths / 1,363 Sqft
$2,180 - $2,670
Unit Total monthly cost Availability
WAITC16 $2,054 Now
View
CN216 $2,180 - $2,670 Jul 24
View
a floor plan of a house with a bedroom and a living room
C01 2x2
2 Beds / 2 Baths / 1,039 Sqft
$2,130 - $2,610
Unit Total monthly cost Availability
WAITC1 $1,950 Now
View
428 $2,130 - $2,610 Jul 8
View
a floor plan of a house with two floors and a garage
C17 2x2.5den
2 Beds / 2 Baths / 1,544 Sqft
$2,820 - $3,385
Unit Total monthly cost Availability
WAITC17 $2,650 Now
View
603 $2,820 - $3,385 Jun 18
View
a floor plan of a home with an open floor plan with bedrooms and a living
C06 2x2
2 Beds / 2 Baths / 1,165 Sqft
$2,240 - $2,885
Unit Total monthly cost Availability
WAITC6 $2,100 Now
View
E442 $2,280 - $2,885 May 28
View
a floor plan of a home with a bedroom and a living room
C10 2x2
2 Beds / 2 Baths / 1,240 Sqft
$2,115 - $2,625
Unit Total monthly cost Availability
WAITC10 $2,054 Now
View
W107 $2,115 - $2,540 Jun 22
View
a floor plan of a house with a bedroom and a living room
C08 2x2
2 Beds / 2 Baths / 1,126 - 1,211 Sqft
$2,080 - $2,720
Unit Total monthly cost Availability
WAITC8 $2,054 Now
View
N129 $2,080 - $2,495 Jun 22
View
a floor plan of a house with a bedroom and a living room
A6 0x1
Studio / 1 Bath / 633 Sqft
Ask for pricing

Check for available units

Contact us
a floor plan of a 1 bedroom floor plan with a bathroom and a living room
A8 0x1
Studio / 1 Bath / 644 Sqft
Ask for pricing

Check for available units

Contact us
A1 0x1
A1 0x1
Studio / 1 Bath / 518 Sqft
Ask for pricing

Check for available units

Contact us
a floor plan of a 1 bedroom floor plan
A2 0X1
Studio / 1 Bath / 560 Sqft
Ask for pricing

Check for available units

Contact us
A4 0x1
A4 0x1
Studio / 1 Bath / 601 Sqft
Ask for pricing

Check for available units

Contact us
a floor plan of a 1 bedroom floor plan
A3 0x1
Studio / 1 Bath / 598 Sqft
$1,215 - $1,685

Check for available units

Contact us
a floor plan of a house with an open floor plan
B03 1x1
1 Bed / 1 Bath / 659 Sqft
Ask for pricing

Check for available units

Contact us
a floor plan of a house with a bedroom and a living room
B01 1x1
1 Bed / 1 Bath / 649 - 690 Sqft
Ask for pricing

Check for available units

Contact us
a floor plan of a house with a bedroom and a living room
B02 1x1
1 Bed / 1 Bath / 678 Sqft
Ask for pricing

Check for available units

Contact us
a floor plan of a house with an open floor plan
B07 1x1
1 Bed / 1 Bath / 739 Sqft
Ask for pricing

Check for available units

Contact us
a floor plan of a house with a bedroom and a living room
B13 1x1
1 Bed / 1 Bath / 797 Sqft
Ask for pricing

Check for available units

Contact us
a floor plan of a house with an open floor plan with a bedroom and a
B31 1x1
1 Bed / 1 Bath / 992 Sqft
Ask for pricing

Check for available units

Contact us
a floor plan of a house with a bedroom and a living room
B30 1x1.5
1 Bed / 1 Bath / 991 Sqft
Ask for pricing

Check for available units

Contact us
this floor plan is an approximation of our floor plan
B06 1x1
1 Bed / 1 Bath / 719 - 770 Sqft
Ask for pricing

Check for available units

Contact us
a floor plan of a house with a bedroom and a living room
B11 1x1
1 Bed / 1 Bath / 784 Sqft
Ask for pricing

Check for available units

Contact us
a floor plan of a house with a bedroom and a living room
B19 1x1
1 Bed / 1 Bath / 856 Sqft
Ask for pricing

Check for available units

Contact us
a floor plan of a house with a bedroom and a living room
B26 1x1.5
1 Bed / 1 Bath / 929 Sqft
Ask for pricing

Check for available units

Contact us
a floor plan of a house with a bedroom and a living room
B32 1x1
1 Bed / 1 Bath / 998 Sqft
Ask for pricing

Check for available units

Contact us
a floor plan of a house with a bedroom and a living room
B22 1x1
1 Bed / 1 Bath / 877 Sqft
Ask for pricing

Check for available units

Contact us
a floor plan of a house with an open floor plan
B14 1x1
1 Bed / 1 Bath / 825 Sqft
Ask for pricing

Check for available units

Contact us
a floor plan of a house with a bedroom and a living room
B08 1x1
1 Bed / 1 Bath / 772 Sqft
$1,535 - $1,960

Check for available units

Contact us
a floor plan of a house with a bedroom and a living room
B09 1x1
1 Bed / 1 Bath / 774 Sqft
Ask for pricing

Check for available units

Contact us
a floor plan of a house with a bedroom and a living room
B27 1x1
1 Bed / 1 Bath / 933 Sqft
Ask for pricing

Check for available units

Contact us
a floor plan of a house with a bedroom and a living room
B17 1x1
1 Bed / 1 Bath / 937 Sqft
Ask for pricing

Check for available units

Contact us
a floor plan of a house with a kitchen and a living room
B24 1x1
1 Bed / 1 Bath / 916 Sqft
Ask for pricing

Check for available units

Contact us
a floor plan of a house with a bedroom and a living room
B28 1x1
1 Bed / 1 Bath / 960 Sqft
Ask for pricing

Check for available units

Contact us
a floor plan of a house with a bedroom and a living room
B33 1x1Den
1 Bed / 1 Bath / 1,195 Sqft
Ask for pricing

Check for available units

Contact us
a floor plan of a house with a bedroom and a living room
C02 2x2
2 Beds / 2 Baths / 1,023 Sqft
Ask for pricing

Check for available units

Contact us
a floor plan of a house with a bedroom and a living room
C04 2x2
2 Beds / 2 Baths / 1,165 Sqft
Ask for pricing

Check for available units

Contact us
a floor plan of a house with a bedroom and a living room
C13 2x2
2 Beds / 2 Baths / 1,317 Sqft
Ask for pricing

Check for available units

Contact us
a floor plan of a house with a bedroom and a living room
C05 2x2
2 Beds / 2 Baths / 1,159 Sqft
Ask for pricing

Check for available units

Contact us
a floor plan of a house with a bedroom and a living room
C07 2x2
2 Beds / 2 Baths / 1,167 Sqft
$2,225 - $2,725

Check for available units

Contact us
a floor plan of a house with a bedroom and a living room
C14 2x2
2 Beds / 2 Baths / 1,309 Sqft
Ask for pricing

Check for available units

Contact us
a floor plan of a house with a bedroom and a living room
C09 2x2
2 Beds / 2 Baths / 1,191 Sqft
Ask for pricing

Check for available units

Contact us
a floor plan of a house with a bedroom and a living room
C12 2x2
2 Beds / 2 Baths / 1,245 Sqft
Ask for pricing

Check for available units

Contact us
a floor plan of a house with bedrooms and a living room
C15 2x2
2 Beds / 2 Baths / 1,317 Sqft
Ask for pricing

Check for available units

Contact us

Policies

Security deposit $500

Application fees $50

There may be additional unit-specific fees. Please select a unit and move-in date here.

One-time pet fees $300

Security pet deposit $300

Monthly pet rent $40

Pet limit 2 allowed. Up to 2 pets per home are welcome.

View more
One-time pet fees $300

Security pet deposit $300

Monthly pet rent $40

Pet limit 2 allowed. Up to 2 pets per home are welcome. Breed restrictions apply.

View more
Pets - Max 2 Allowed Monthly Pet Rent: $40 per pet Non-Refundable Pet Fee: $300 per pet Refundable Pet Deposit: $300 per pet  Cats & Dogs are welcome! We do not have a weight limit, but the following breed restrictions apply: Pit Bull & Pit Bull Mixes, American Pit Bull Terrier, American Staffordshire Terrier, Wolf Hybrids, Doberman Pinscher, Saint Bernard, American Bulldog, Staffordshire Bull Terrier, Rottweiler, German Shepherd, Chow Chow, Great Dane, and Akita. Some other types of caged pets such as hamsters, birds, reptiles, turtles, and fish are allowed. Tropical fish must be limited to a 20-gallon tank. The max number allowed and pet fees apply only for cats and dogs; the max number allowed and pet fees do not apply for other types of pets. Our community is pet friendly, and certified service dogs are allowed. We consider requests for reasonable accommodations on a case-by-case basis after considering the nature of the request for accommodation to afford a person with a disability an equal opportunity to use and enjoy our community. View more

The fees are estimates and actual amounts may vary. Pricing and availability are subject to change. For details, contact the property.

Cost calculator

See initial one-time fees and calculate total monthly cost based on different lease options. 

View more
Rent specials

Limited-Time Savings on Select Apartment Homes! Enjoy $500 Off Studios, $2,000 Off 1-Bedrooms & $2,500 Off 2-Bedrooms $3000 Off Townhomes — Offer Ends June 29th *Limited time offer. Must move in by March 27th, 2026. Restrictions apply. Specials, pricing and availability subject to change daily. Contact the leasing office for details. Offers vary by floor plan.

Check details about rent specials

Amenities

Inspire apartments offers a wide range of community and apartment amenities for our residents. Enjoy living in one of our beautiful homes that provide garden soaking bathtubs, USB outlet charging ports, and wood-style plank flooring. You’ll love additional touches in select homes, like tall ceilings and a private veranda balcony. At our community amenities, you can work from home in our business center, entertain in the outdoor kitchen with a lounge, and achieve a great workout at our 24-hour fitness club. Learn more below about why Inspire is the right place for your new home!

Apartment amenities

  • Granite countertops with glass tile backsplash
  • Solid wood cabinets
  • In-home washer and dryer
  • Ceramic tile bathroom floors and showers
  • Large walk-in closets
  • Kitchen islands with undermount sinks *
  • Bamboo flooring *
  • Garden tubs *
  • App-enabled Smart Home technology in every home *
  • Stainless steel GE appliances *
  • Built-in wine fridges *
  • Stand-alone showers and soaking tubs *
  • In-home, full-size washer/dryer
  • 14 ft Ceilings
  • Private veranda balconies *
  • 2nd Balcony
  • Wheelchair Accessible
  • 11-foot ceilings *
  • Balcony
  • Corner Unit
  • Undermount sinks
  • Greenbelt View
  • Kitchen islands *
  • Double vanity sinks *
  • Juliette Balcony
  • Large Balcony
  • Floor-to-ceiling storybook windows
  • Pool View
  • Townhome Corner
  • City View
  • Courtyard View
  • Fountain View
  • XL Balcony
  • 1st Floor
  • 2nd Floor
  • 3rd Floor
  • 4th Floor
  • 5th Floor
  • 6th Floor

Community amenities

  • Direct access to Midtown Greenway Hike and Bike Trail
  • Resort-style pools with landscaping, kitchen & fire pits
  • Multipurpose community room
  • Game Room w/ billiards, shuffle board, foosball & poker room
  • Fitness center with Fitness-on-Demand and yoga/pilates room
  • Bicycle storage & repair station
  • Resort-style Pool w/ Cabanas
  • Smoke Free
  • Underground heated parking
  • Cutting-edge Smart Home Technology
  • 6th-floor Sky Lounge w/ Entertaining Terrace
  • LEED Silver Certified Community
  • Dog washing station
  • Convenient online resident portal

Ratings and reviews

4.5 Fabulous
4 Reviews
Parking 5.0
Amenities 4.5
Maintenance 4.5
Staff 5.0
Value 4.5
Location 4.5
Noise 4.5
Siddarth S. Verified Resident
Jul 22, 2024

The building has seen a number of improvements throughout the last year that have improved the community

Jake Verified Resident
Mar 23, 2024

Wonderful location and great staff who will do their best to make sure you enjoy your stay.

Brad S. Verified Resident
Nov 2, 2023

Good experience living here so far. The location is really great and close to most places. The area seems to be coming to life and in the next few years will surely be perfect. The parking and amenities make the place worth the price.

Anonymous Verified Resident
Oct 6, 2023

For my first apartment this is a very nice one!


Building details

8 buildings in the community 590 apartments in the community 3 - 6 stories per building Building constructed in 2013 Green building

Property description

Come home to relaxed, elegant living at Inspire apartments. Our apartments in Minneapolis’ Uptown neighborhood are in a vibrant area near the Chain of Lakes, the MoZaic office complex, and along the Greenway bike path. Inspire offers modern apartments with useful amenities in a warm and active community. It’s also pet-friendly, has an underground heated parking garage, and is less than three...
Come home to relaxed, elegant living at Inspire apartments. Our apartments in Minneapolis’ Uptown neighborhood are in a vibrant area near the Chain of Lakes, the MoZaic office complex, and along the Greenway bike path. Inspire offers modern apartments with useful amenities in a warm and active community. It’s also pet-friendly, has an underground heated parking garage, and is less than three miles from downtown.
Inspire offers gorgeous studio, one, and two bedroom apartments and townhomes to meet your needs and lifestyle. Each home is thoughtfully designed and includes modern touches like a gourmet kitchen and walk-in closets. For a personalized look at our community, contact us to schedule a private in-person tour with one of our professional leasing team members. We can’t wait to show you your new home at Inspire in Minneapolis, MN! Touring restrictions may apply. Application Fee: $25 Move-in Fee: $175.

Neighborhood

Use the map to explore the neighborhood and see how it matches your interests.

2837 Emerson Ave S, Minneapolis, MN 55408
Loading content, please wait...
Loading...

Contact information

Property managed by: Weidner Apartment Homes
Weidner Apartment Homes Company

Call leasing office: 6124318947

Property office hours:
Today 9:00AM-5:00PM
  • Monday 9:00AM-5:00PM
  • Tuesday 9:00AM-5:00PM
  • Wednesday 9:00AM-5:00PM
  • Thursday 9:00AM-5:00PM
  • Friday 9:00AM-5:00PM
  • Saturday 9:00AM-5:00PM

SUNDAY : Closed


Explore popular searches
By lifestyle & amenities

Explore more rentals



Frequently asked questions

When were prices and availability for this property last updated?

Prices and availability for this property were last updated Today.

What floorplans are available?

The following floorplans are available: studio apartments from $1,215, 1-bedroom apartments from $1,535 and 2-bedrooms apartments from $2,080.

What are the most popular nearby apartments?
What neighborhood is Inspire in?

Inspire is located in the Uptown Minneapolis neighborhood.

What are the business hours?

The business hours are:

  • Monday 9:00AM-5:00PM
  • Tuesday 9:00AM-5:00PM
  • Wednesday 9:00AM-5:00PM
  • Thursday 9:00AM-5:00PM
  • Friday 9:00AM-5:00PM
  • Saturday 9:00AM-5:00PM